1513 Doran TerraceRichburg, SC 29729



Mortgage Calculator
Monthly Payment (Est.)
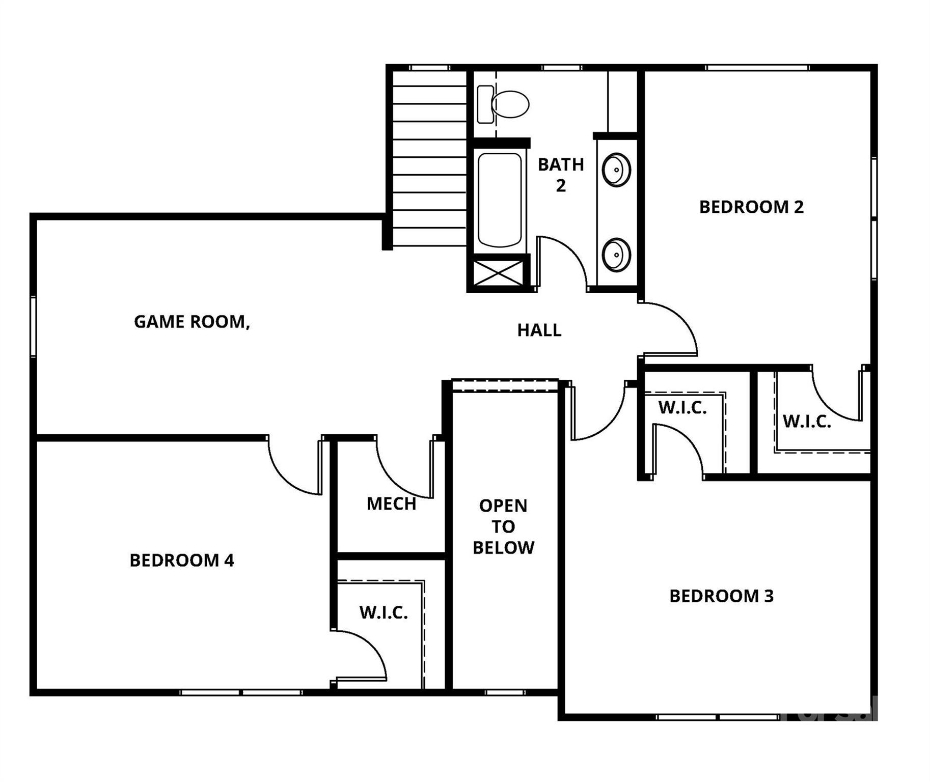
$1,624First Floor Primary Bedroom!! The Graham's thoughtfully designed floor plan offers endless possibilities for your home. A spacious flex room gives you the space to turn empty space to your ideal room. From a home library, a craft room, or even the work-from-home office you've always wanted, there is space for it. Upstairs, you'll find three large bedrooms, each designed to maximize comfort and personal space for every member of the family. The heart of the Graham is its open-concept kitchen, complete with granite countertops, brand-new appliances, and a large island that doubles as a prep space or a hub to gather. Whether you're sharing breakfast before school or preparing a holiday meal, this kitchen makes it easy to stay connected to the moments that matter. Bring the outdoors in with not one, but two covered spaces designed for comfort and enjoyment. Enjoy the charm of your covered front porch, perfect for enjoying your coffee in the mornings. The retreat to your backyard patio for summer evening dinners or watching the kids play in the backyard. With two indoor and outdoor gathering spots, the Graham encourages you to live life in your home to fullest. Ask about Special Financing and Builder Incentives!
| a week ago | Status changed to Active | |
| a week ago | Listing updated with changes from the MLS® | |
| a week ago | Price changed to $355,900 | |
| 4 months ago | Listing first seen on site |
Listings courtesy of Canopy MLS as distributed by MLS GRID. Based on information submitted to the MLS GRID as of {last_incremented_at}. All data is obtained from various sources and may not have been verified by broker or MLS GRID. Supplied Open House Information is subject to change without notice. All information should be independently reviewed and verified for accuracy. Properties may or may not be listed by the office/agent presenting the information. Some IDX listings have been excluded from this website. Properties displayed may be listed or sold by various participants in the MLS. ©2026 Canopy MLS.
The Digital Millennium Copyright Act of 1998, 17 U.S.C. § 512 (the “DMCA”) provides recourse for copyright owners who believe that material appearing on the Internet infringes their rights under U.S. copyright law. If you believe in good faith that any content or material made available in connection with our website or services infringes your copyright, you (or your agent) may send us a notice requesting that the content or material be removed, or access to it blocked. Notices must be sent in writing by email to DMCAnotice@MLSGrid.com. “The DMCA requires that your notice of alleged copyright infringement include the following information: (1) description of the copyrighted work that is the subject of claimed infringement; (2) description of the alleged infringing content and information sufficient to permit us to locate the content; (3) contact information for you, including your address, telephone number and email address; (4) a statement by you that you have a good faith belief that the content in the manner complained of is not authorized by the copyright owner, or its agent, or by the operation of any law; (5) a statement by you, signed under penalty of perjury, that the information in the notification is accurate and that you have the authority to enforce the copyrights that are claimed to be infringed; and (6) a physical or electronic signature of the copyright owner or a person authorized to act on the copyright owner’s behalf. Failure to include all of the above information may result in the delay of the processing of your complaint.
Last checked - 2026-01-15 09:21 PM UTC

Did you know? You can invite friends and family to your search. They can join your search, rate and discuss listings with you.