210 N Yadkin AvenueSpencer, NC 28159


Mortgage Calculator
Monthly Payment (Est.)
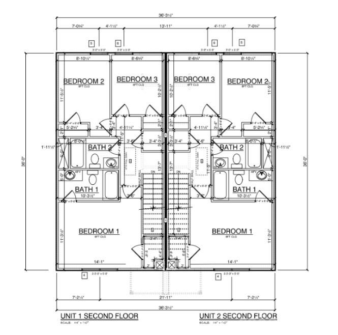
$2,007**Up to 5% in closing credit and discounted property management cost for first year when using preferred lender & property manager Well-designed income-producing duplex featuring two spacious, mirror-image units with thoughtful floor plans ideal for long-term tenants or owner-occupants. Each unit offers a functional two-story layout with private entrances, open living areas, and bedroom separation for added privacy. First Floor: • Open-concept family room and dining area with great natural light • Modern kitchen with island, pantry, and ample cabinet space • Powder room (half bath) conveniently located on main level • Laundry area centrally located for efficient plumbing design • Access to optional rear patio, perfect for outdoor living Second Floor: • Three generously sized bedrooms • Two full bathrooms, including a primary bath layout • Well-planned hallway and closet space for maximum functionality Investment Appeal: This duplex is perfectly suited for investors seeking a low-maintenance, high-demand rental property or buyers looking to live in one unit and rent the other. Functional layouts, multiple bathrooms, and generous bedroom counts make each unit highly attractive to tenants.
| 3 weeks ago | Status changed to Pending | |
| 3 weeks ago | Listing updated with changes from the MLS® | |
| a month ago | Listing first seen on site |
Listings courtesy of Canopy MLS as distributed by MLS GRID. Based on information submitted to the MLS GRID as of {last_incremented_at}. All data is obtained from various sources and may not have been verified by broker or MLS GRID. Supplied Open House Information is subject to change without notice. All information should be independently reviewed and verified for accuracy. Properties may or may not be listed by the office/agent presenting the information. Some IDX listings have been excluded from this website. Properties displayed may be listed or sold by various participants in the MLS. ©2026 Canopy MLS.
The Digital Millennium Copyright Act of 1998, 17 U.S.C. § 512 (the “DMCA”) provides recourse for copyright owners who believe that material appearing on the Internet infringes their rights under U.S. copyright law. If you believe in good faith that any content or material made available in connection with our website or services infringes your copyright, you (or your agent) may send us a notice requesting that the content or material be removed, or access to it blocked. Notices must be sent in writing by email to DMCAnotice@MLSGrid.com. “The DMCA requires that your notice of alleged copyright infringement include the following information: (1) description of the copyrighted work that is the subject of claimed infringement; (2) description of the alleged infringing content and information sufficient to permit us to locate the content; (3) contact information for you, including your address, telephone number and email address; (4) a statement by you that you have a good faith belief that the content in the manner complained of is not authorized by the copyright owner, or its agent, or by the operation of any law; (5) a statement by you, signed under penalty of perjury, that the information in the notification is accurate and that you have the authority to enforce the copyrights that are claimed to be infringed; and (6) a physical or electronic signature of the copyright owner or a person authorized to act on the copyright owner’s behalf. Failure to include all of the above information may result in the delay of the processing of your complaint.
Last checked - 2026-03-02 03:11 AM UTC

Did you know? You can invite friends and family to your search. They can join your search, rate and discuss listings with you.